Lizant - potter home
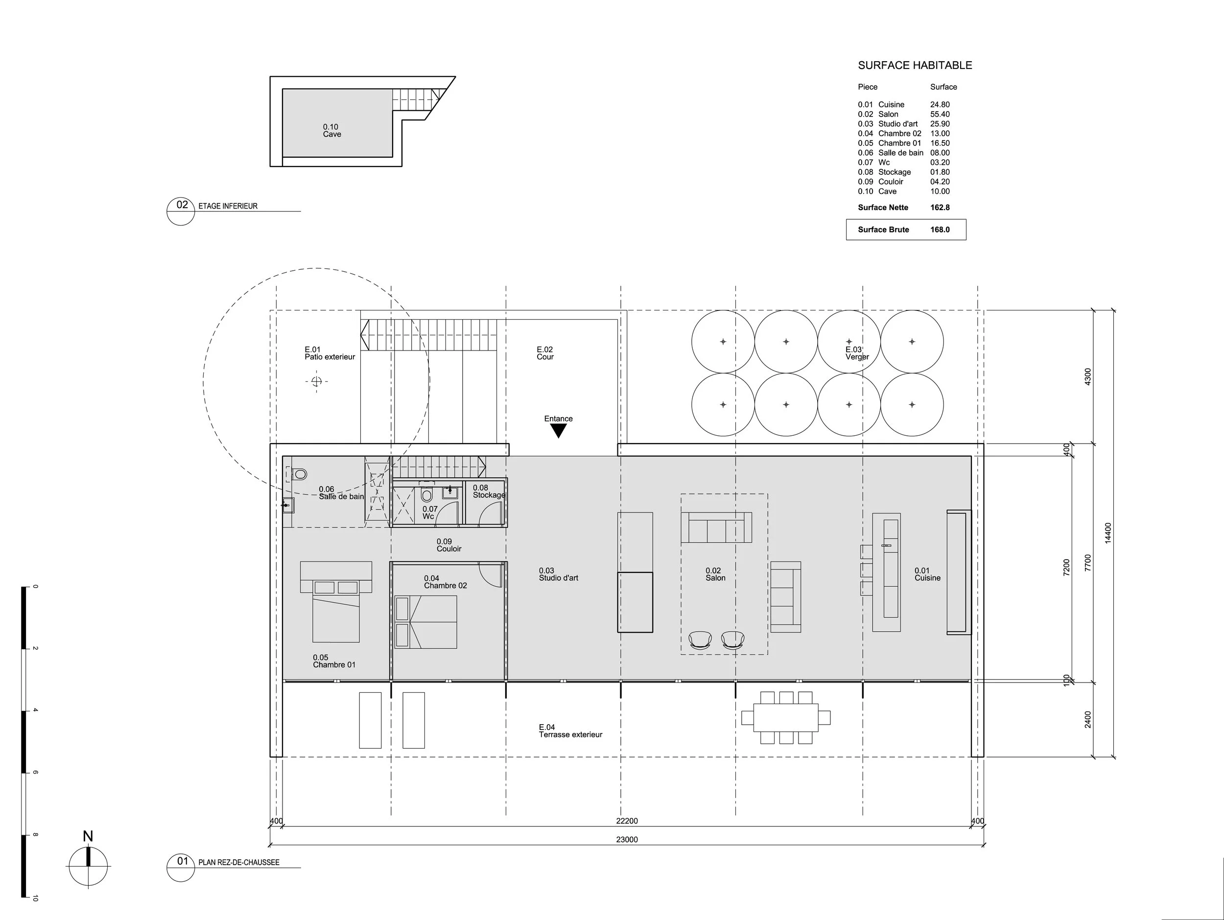
A home for a photographer and potter, concealed within a mature French landscape. The house is designed as a low-profile structure, embedded into the natural slope of the site to minimise visual impact.
Conceived as a stone-walled garden, the stone cladding encloses and conceals a green roof that extends the surrounding landscape. The material language recalls the traditional rural buildings of the area.
The home has been designed to be fully off-grid, with orientation and natural ventilation central to the sustainable design strategy. Internally, a single open-plan space combines kitchen, living and studio areas, centred around a fireplace and pottery display. A restrained palette of concrete, stone and raw metal provides a neutral backdrop for the residents’ artwork.