King Edwards Road

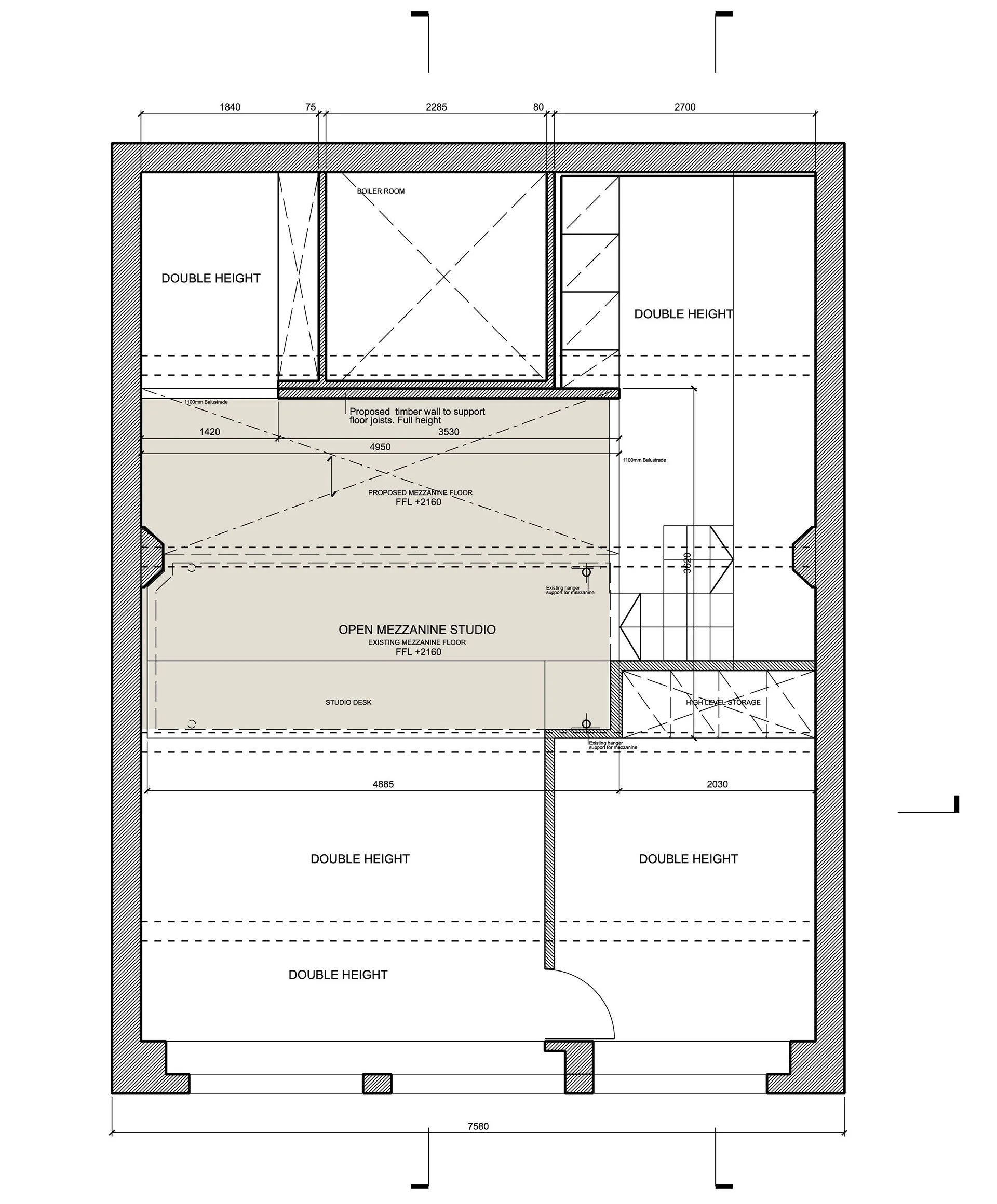
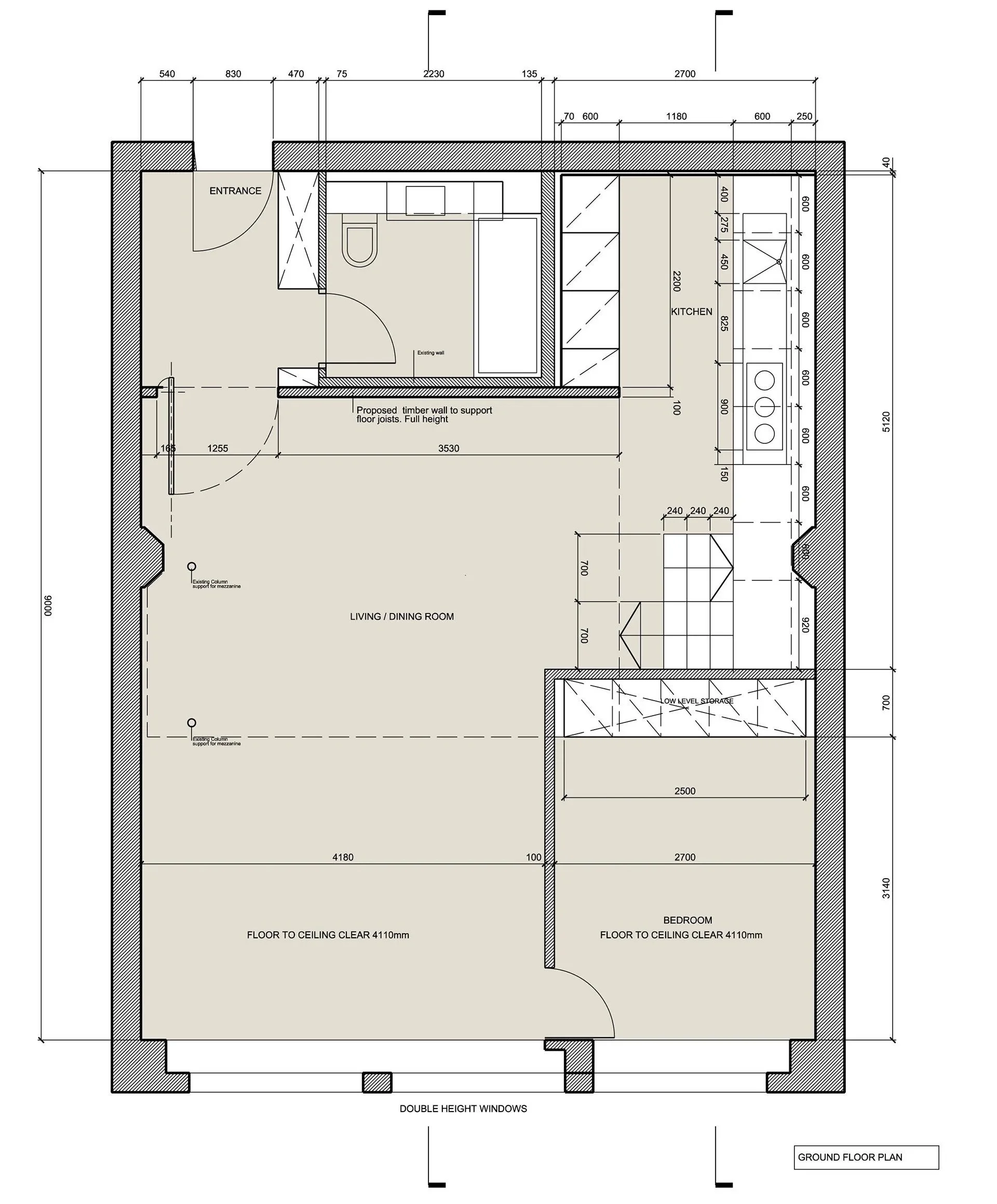
Located in a former industrial clothing warehouse, this flat has been carefully converted into a spacious two-bedroom apartment that celebrates the robust character of the original building. The design makes full use of the generous proportions of the existing structure, with a double-height living space forming the heart of the home. Within this volume, a mezzanine level has been introduced to create a flexible studio area that overlooks the living space below, reinforcing visual connections and enhancing the sense of openness throughout the apartment.

The industrial nature of the warehouse has been consciously preserved and reinterpreted. An open stair rises from the main living area and is seamlessly integrated into the large kitchen worktop, forming a sculptural element that unites circulation, furniture, and architecture. This bespoke precast concrete worktop incorporates a recessed preparation zone with an integrated sink and hob, creating a continuous and highly functional surface. The exposed aggregate finish of the concrete further emphasises the building’s industrial heritage, while providing texture and visual interest.

Natural light filters through the existing openings, highlighting the raw material palette and generous ceiling heights. The combination of robust materials, clean detailing, and carefully considered interventions results in a contemporary living environment that retains the spirit of the original warehouse.